Istocno Sarajevo, Karađorđeva bb
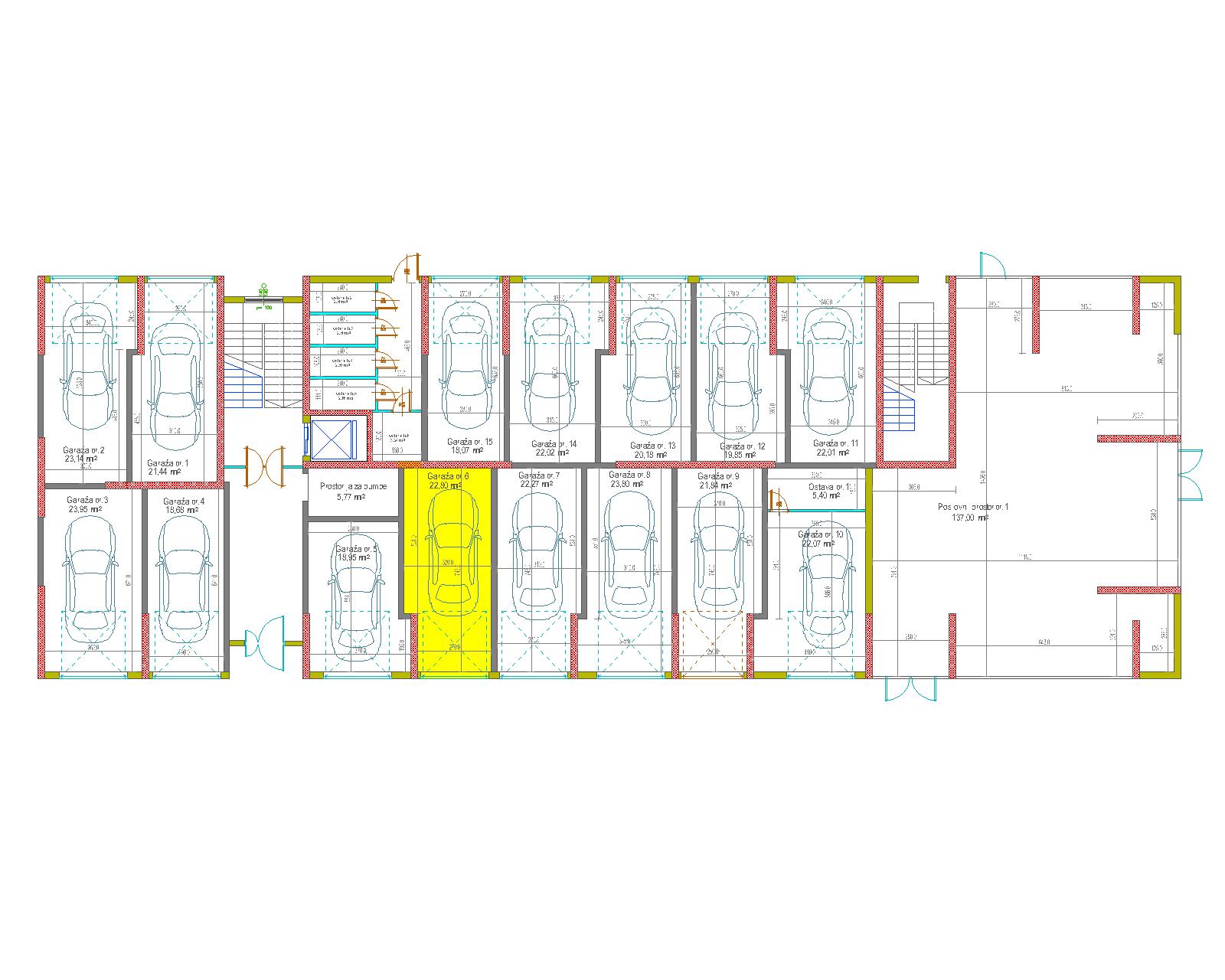
Garaža 22,80 m2, Lamela D
Objekti u pripremi
Garaža sa rolo vratima na daljinsko upravljanje.
Stambeno-poslovni objekatLamela D, Karađorđeva bb
70 stanova, 1 poslovni prostor i 15 garaža
+387 65 578 042
Izdvojene karakteristike
Grad:
Istocno Sarajevo
Površina:
22.80 m2
Sprat:
PR
Tip:
Stambeno-poslovni objekat
Broj stana:
10
Dodatne karakteristike
Rolo vrata:

Daljinsko upravljanje:

Kapacitet:
1