Istocno Sarajevo, Karađorđeva bb

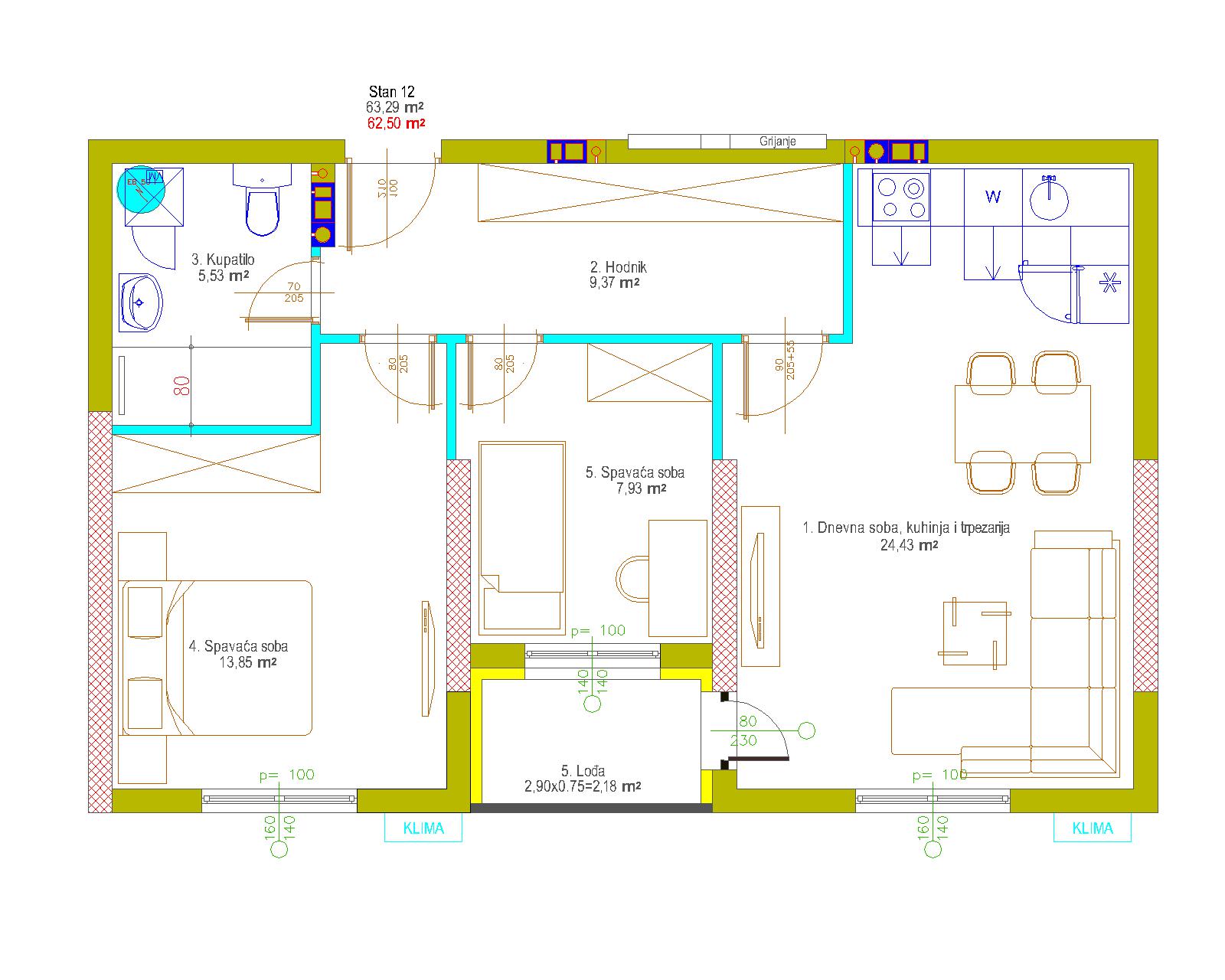
Stan 62,50 m2, Lamela D

Objekti u izgradnji

Trosoban stan jugo-zapadne orijentacije.
PRODATO
12 Stan

Stambeno-poslovni objekatLamela D, Karađorđeva bb

70 stanova, 1 poslovni prostor i 15 garaža

+387 65 578 042

Izdvojene karakteristike

Grad:
Istocno Sarajevo
Površina:
62.5 m2
Sprat:
V
Tip:
Stambeno-poslovni objekat
Broj stana:
12
 
 

Dodatne karakteristike

Broj spavacih soba:
2
Broj kupatila:
1
Broj toaleta:
1
Broj spratova:
7
Ostava:
-
Balkon:
Grijanje:
Centralno
Alternativno grijanje:
-
Vrsta poda:
Gotovi pod, parket
Fasadna stolarija:
Drvo
Lift:
Blindirana vrata:
Interfon:
Video nadzor:
Optika:
Kablovska TV:
Telefon:
Internet: